E R O U N _ SELF PC
PROJECT INFORMATION
Title : E R O U N _ SELF PC_vol.1
Architect : VINZIP
Location : Sinchon
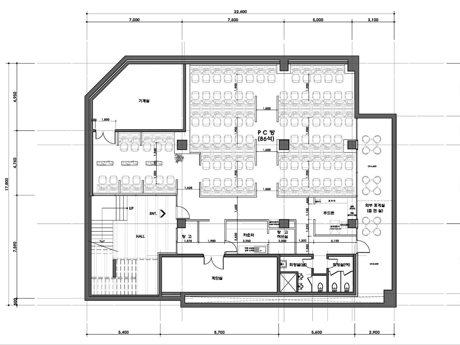
Uses : PC Room
Gross Floor Area : 238.15㎡
Work area : Concept Design
Client : Eroun Friends
Data : 2018 06
Urban six의 첫 단추가 될 프로젝트.
도심형 테마파크를 지향하는 복합문화 공간으로써 그 가능성을 엿보다.

초연결 사회에서 고객은 컨텐츠와의 유대가 필요 할 뿐이다. 내가 선택하고 내가 움직인다. 셀프테크널로지 기술은 비대면이라도 항상 연결되어 있는 특성에 맞춰 sns 기술과 IOT기술을 결합해 자동화 멀티 자판기, 인공지능형 보안시스템등 관리자의 요소를 최소화 시키고 고객중심의 서비스가 발아하는 4차 산업혁명이 우리 삶에 녹아드는 첫 장소가 될 것이다.
더이상 게임은 남자들만의 전유물이 아니다. 여성의 감성을 자극하는 공간이여야 하고 자발적 서비스의 이용가 능동적 체험공유로 새로운 관점의 공간가치가 창출 될 수 있기를 기대한다. 첫 고객은 2명의 여자 손님이였다. ” 와. 여기봐. 찰칵 찰칵 ” 게임의자에 앉기전에 사진부터 찍고 sns에 공유하던 모습이 아직도 눈에 선하다. 건축가가 하는 일중 하나는 사람이 어떤 공간에서 어떤 행위가 유발될 것인가를 생각하고 고민하는 일 아닐까?
Project Essay
Multi Platform Space
도심형 테마파크로써의 첫 프로젝트이다. 클라이언트의 노하우가 집약될 공간!
Beyond on/off line
온,오프라인을 넘어 하나의 문화를 만들어 나갈 수 있기를 기대한다.
Urban Digital Theme Park
높은 수준의 서비스를 원하는 고객들에게 맞춤형 디지털 테마파크의 첫 시험 무대가 될 것이다.
Eroun Self Pc Cafe
셀프 테크널러지 기술로 이름, 서비스가 하나의 맥락으로 읽혀지는 정체성이 공간에 잘 녹아 들 수 있기를 기대한다.












